Skip to content

Lichtdurchflutetes Wohnen über Zürich – Urbanität trifft Alpenblick

Référence: VI-00021931-2

Appartement de 3.5 pièces à Zürich

Type de bien

Appartement

Prix d’achat en CHF

1’600’000.–

Surface habitable

90.2 m2

Chambres

3.5

Diese elegante 3.5-Zimmer-Wohnung präsentiert sich im 11. Obergeschoss eines im Jahr 2020 erbauten Wohnhochhauses an der Leutschenbachstrasse in Zürich.

Die neuwertige Immobilie liegt in einem modernen, familienfreundlichen Wohnensemble mit gepflegter Parkanlage und Zugang zu einer gemeinschaftlich nutzbaren Dachterrasse. Das Quartier bietet eine aussergewöhnlich hohe Lebensqualität mit vielfältigen Freizeit- und Sportangeboten, attraktiven Einkaufsmöglichkeiten und mehreren Grünflächen.

Die Anbindung an den öffentlichen Verkehr ist optimal: Die Tramstation Leutschenbach befindet sich nur wenige Gehminuten entfernt, den Bahnhof Zürich Oerlikon erreichen Sie in rund zehn Minuten. Schulen und Kindergärten sind ebenfalls in Gehdistanz.

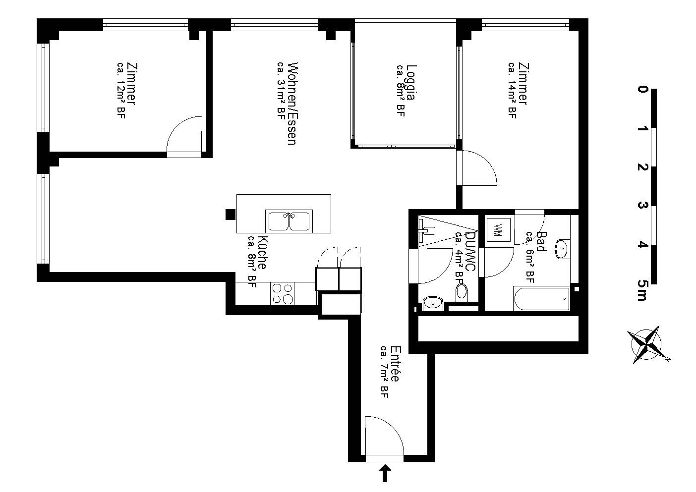
Ihr neues Zuhause besticht durch einen clever konzipierten Grundriss, eine eindrucksvolle Aussicht sowie eine ruhige, urbane Umgebung, die hohen Wohnkomfort garantiert. Der offen gestaltete Wohn- und Essbereich mit moderner Küche und Kochinsel schafft ein einladendes Zentrum. Zwei Schlafzimmer sowie zwei stilvoll ausgebaute Badezimmer erweisen sich als angenehme Rückzugsorte.

Eine eigene Waschmaschine und ein Trockner sind in der Wohnung integriert. Grosse Fensterfronten und eine Loggia sorgen für lichtdurchflutete Räume, Morgenstimmung und einen Weitblick bis hin zu den Alpen.

Ein Tiefgaragenstellplatz kann zusätzlich für CHF 50’000.– erworben werden.

Interessiert? Dann kontaktieren Sie uns für eine unverbindliche Besichtigung.

Situation

Leutschenbachstrasse 40, 8050 Zürich

Caractéristiques

21 Étages dans le bâtiment

Année de construction 2020

Étage 11

Surface habitable 90.2 m²

Surface utile secondaire 8 m²

Proximité des transports publics

Ascenseur

Certifié Minergie

Accessible en fauteuil roulant

Balcon / terrasse / coin salon

Cave

Accessible

Adapté aux enfants

Place de parking / Garage

Bon ensoleillement

Services accessibles à pied

Photo de profil de Marco Zanon

Demander un exposé complet.

Marco Zanon

Responsable adjoint zone de marché
marco.zanon@raiffeisen.ch

Vous ne trouvez pas ce que vous cherchez ?
Autres biens immobiliers à proximité

CHF 1’350’000.–

Appartement à 8152 Opfikon

4.5 chambres 118 m2

CHF 1’350’000.–

Appartement à 8302 Kloten

3.5 chambres 102 m2

CHF 990’000.–

Appartement à 8311 Brütten

4.5 chambres 123 m2